Terug naar hoofdinhoud

"Succes is altijd
een teamprestatie"

Advisering

Onze afdeling verkoop functioneert tevens als uw adviseur in het begeleiden van uw project voor een nieuwe keuken. Dit kan ook op locatie.

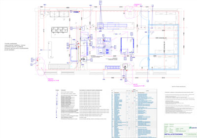
Wij kunnen u begeleiden in het uitvoeren van een HACCP plan. Daarnaast kunnen wij uw plannen aanleveren via een AutoCad tekening -plattegrond met bijbehorende aansluitpuntentekening.
Wij kunnen met u meedenken in uw concept voor het kookproces.

Ons advies is mede gericht op de door u aangegeven ideeën, budget en gebruikswensen. 

InstallatietekeningInstallatietekeningsokkelplansokkelplan